
|
mélanie grüning
architektin ba bfh
tel. 079 624 87 55
| |
| |
|
|
| |
umbau badezimmer, wohnung gasel, auftraggeberin: s. nicolet
|



|
|
|
>> nach oben
|
|
|
| |
umbau wc, wohnung bern, auftraggeberin: s. nicolet
|


|
|
|
>> nach oben
|
|
|
| |
baueingabe anbau balkone, mfh thun, auftraggeber w. joder
|




|
|
|
>> nach oben
|
|
|
| |
einbau lift, klinik arlesheim, auftraggeber: dbs projekte, burgdorf
|


|
|
|
>> nach oben
|
|
|
| |
objekt: | ausbau wohnung in altstadthaus, burgdorf (be) | |
auftraggeber (c): | dieter baumann stucki projekte, bern | |
zeitraum: | juli 2014 | |
auftrag: | plandigitalisierungen, baugesuchspläne, detailpläne
|
|
|
|
|
|
|
|
|
|
|
|
|
|
|
>> nach oben
|

|
|
|
| |
objekt: | sanierung wohnhaus küsnacht (zh) | |
auftraggeber (c): | baier bischofberger architekten, zürich | |
zeitraum: | juli - oktober 2014 | |
auftrag: | div. ausführungs- und detailpläne
|
|
|
|
|
|
|
|
|
|
|
|
|
|
|
|
|
|
|
|
|
>> nach oben
|

|
|
|
| |
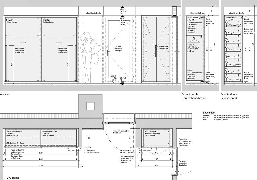
objekt: | schulraumprovisorium für tagesschule, schulanlage schönau, thun | |
auftraggeber (c): | kocher minder architekten, thun | |
zeitraum: | dezember 2012 | |
auftrag: | submissionspläne (küche, sanitärbereich, schränke etc.)
|
|
|
ansicht küche
|
|
|
grundriss küche
|
|
|
grundriss sanitärbereich
|
|
|
schnitte / ansichten sanitärbereich
|
|
|
>> nach oben
|

|
|
|
| |
objekt: | projektwettbewerb gesamtsanierung + erweiterung volksschule manuel, projekt »yenga« | |
auftraggeber (c): | dadarchitekten gmbh bern | |
zeitraum: | oktober 2012 | |
auftrag: | wettbewerbspläne, layouts
|
|
|
ansicht 1
|
|
|
ansicht 2
|
|
|
detail fassade neubau ansicht / schnitt
|
|
|
detail fassadensanierung 1 ansicht / schnitt
|
|
|
detail fassadensanierung 2 ansicht / schnitt
|
|
|
>> nach oben
|

|
|
|
| |
objekt: | jugendherberge avenches (vd) | |
auftraggeber (c): | dadarchitekten gmbh bern | |
zeitraum: | august 2012, april - mai 2013 | |
auftrag: | vorprojektpläne, skizzen
|
|
|
gesamtfassaden best. hauptgebäude und neuer pavillon behindertengerecht
|
|
|
ausschnitt grundriss neuer pavillon behindertengerecht
|
|
|
skizze pavillon mit laubengang
|
|
|
skizze freistehender pavillon
|
|
|
studie wände / türen / türbeschriftungen
|
|
|
>> nach oben
|

|
|
|
| |
objekt: | wettbewerb ausstellung »world nature forum« | |
auftraggeber (c): | expoforum gmbh, bern | |
zeitraum: | oktober 2013 | |
auftrag: | wettbewerbspläne / -3d-darstellungen
|
|
|
ausschnitt längsschnitt
|
|
|
ausschnitt grundriss
|
|
|
3d-darstellungen (fluchtpunktperspektive, isometrie)
|
|
|
>> nach oben
|

|
|
|
postkarte 2012
|
|
 |
|
tools: vectorworks architektur, adobe indesign
|
|
|
>> nach oben
|

|
|
|
| |
objekt: | anbau wohnhaus in luterbach (so) | |
auftraggeber (c): | markus ducommun, architekt eth sia bsa, solothurn | |
zeitraum: | mai 2012 | |
auftrag: | - erstellen von grundlageplänen (grundrisse, ansichten, schnitte)
- projekt anbau gem. skizzen / erläuterungen architekt
- layout 1:100 für baugesuch / 1:50 für submissionen
|
|
|
schnitt 1-1
|
|
|
grundriss erdgeschoss
|
|
|
fassade südost
|
|
|
>> nach oben
|

|
|
|
| |
objekt: | betriebsgebäude gemeinde buchholterberg | |
auftraggeber (c): | w. joder, dipl. bauführer, heimenschwand | |
zeitraum: | april - juni 2012 | |
auftrag: | baugesuchspläne 1:100, ausführungspläne 1:50
|
|
|
baugesuchsplan, fassade nord
|
|
|
baugesuchsplan, fassade ost
|
|
|
baugesuchsplan, querschnitt a-a
|
|
|
>> nach oben
|

|
|
|
objekt: | wohn- und geschäftshaus in zürich | |
auftraggeber (c): | ch architekten ag, wallisellen | |
zeitraum: | juni - november 2012 | |
auftrag: | div. detailpläne für ausschreibungen
|
|
|
treppenhaus schnitte a-a und c-c
|
|
|
treppenhaus grundrisse 2. und 3. obergeschoss
|
|
|
treppengeländer detailschnitte
|
|
|
fassadenschnitte verkaufsfläche ost (aluverkleidung) und west (faltladen)
|
|
|
detailplan eingang treppenhaus mit vordach
|
|
|
>> nach oben
|

|
|
|
| |
objekt: | wohnüberbauung auf industrieareal im raum bern seeland | |
auftraggeber (c): | implenia development ag | |
zeitraum: | märz 2012 | |
auftrag: | - aufzeichnen der bestehenden gebäudevolumen anhand alter pläne
- überprüfung der volumen vor ort
- volumenberechnung gemäss vorgaben implenia, für kalkulation abbruch
|
|
|
schemaschnitte durch areal
|
|
|
grundriss / situation areal
|
|
|
>> nach oben
|

|
|
|
| |
objekt: | um- und anbau wohnhaus in thun | |
auftraggeber (c): | w. joder, dipl. bauführer, heimenschwand | |
zeitraum: | februar - juni 2012 | |
auftrag: | - massaufnahmepläne
- projekt- / baugesuchspläne
|
|
|
fassaden südost + nordost
|
|
|
grundriss obergeschoss
|
|
|
>> nach oben
|

|
|
|
postkarte 2011
|
|
|
| tools: vectorworks architektur, adobe illustrator, adobe indesign |
|
|
>> nach oben
|

|
|
|
mitarbeit ausführungsplanung (werk- und detailpläne) siedlung niederwangen
(c) dadarchitekten gmbh, 2011
|
|
|
ausschnitte detailplan holzelement:
vertikalschnitte durch holzelement und fenstertür, horizontalschnitt holzelement / fenstertür
|
|
|
|
ausschnitte detailplan beton-element-treppe:
längsschnitt / grundriss
|
|
|
|
ausschnitte detailpläne: fassadenschnitt / flachdach / fenster
fassadenschnitt / terrasse / loggia
|
|
|
|
|
bachelor thesis, examinator: j. grunder, berner fachhochschule ahb 2010
serviceapartments 100 feet road, indiranagar, bangalore
ausgezeichnet mit dem »award for sustainable architecture and planning 2010 bfh«
|
|
|
projektbeschrieb
in der südindischen stadt bangalore befindet sich eines der
grössten it-cluster der welt. daher gibt es dort viele
tochterfirmen und filialen von internationalen unternehmungen. für
in- und ausländische mitarbeitende dieser firmen, die für einige
monate in bangalore arbeiten und leben, sogenannte expatriates,
sollen unterkünfte in form von serviceapartments gebaut werden.
dazu wird der vorort vorhandene, durch den aushub gewonnene lehm
als baumaterial verwendet.
der fünfgeschossige stampflehmbau steht in einer baulücke an der
100 feet road in bangalore. er besteht aus zwei teilen, die
vertikal um ein halbgeschoss versetzt sind und in der mitte durch
einen betonkern erschlossen werden. die zwei hälften werden
in der fassade durch betonbänder, jeweils auf brüstungs- und
sturzhöhe optisch zusammengehalten. diesen betonbändern steht
weiter die funktion des witterungsschutzes der fassade, der
aufnahme von zugkräften in der lehmbaukonstruktion sowie der
definition von funktionszonen innerhalb der wohnungen zu.
die grundrisse der kleinen wohnungen sind windmühlenförmig angeordnet, sodass jede
wohnung gegen zwei seiten ausgerichtet ist. zwei kleine wohnungen können zu einer
grossen zusammengefügt werden. die grundrisse sind jeweils gespiegelt, sodass auf der
fassade ein spiel zwischen offen und geschlossen stattfindet.
schwerpunkt der arbeit ist die vertiefung in die thematik des
lehmbaus und die adaption geeigneter lehmbautechniken auf die
gegebene situation.
|
|
|
|
low cost housing, ahmedabad
tanscultural studies, in:ch, berner fachhochschule ahb, 2010, dozenten: j. grunder, y. pandya
|
|
|
projektbeschrieb
zu einer bestehenden siedlung mitten in der nordindischen
stadt ahmedabad, die von einer eher ärmeren bevölkerungsschicht
bewohnt wird, soll auf einer benachbarten freifläche eine
erweiterung geplant werden.
der entwurf basiert einerseits auf einem bandraster
sowie der idee von grund- und zusatzmodulen und
andererseits auf regeln, welche die grundbedürfnisse
der bewohner sowie ein friedlichens zusammenleben
auf engem raum gewährleisten. die siedlung kann
innerhalb dieses rasters und unter berücksichtigung
der regeln nach und nach wachsen.
das tragwerk besteht aus u-förmigen betonelementen,
die durch örtlich vorhandene und für die bevölkerung
erschwingliche materialien
wie lehm- oder flugaschesteine, blech oder
holzplatten etc. ausgefacht werden können.
|
|
|